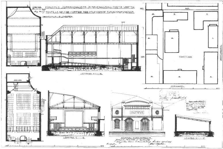
Turun elokuvateattereista toiseksi pitkäikäisin, Olympia, avattiin Eerikinkadun varrella lokakuussa 1907. Teatterin omisti Pohjoismainen Biografi Komppania, ja se rakennettiin laajentamalla jo olemassa olevaa tiilistä varastorakennusta. Kuitenkin teatterista haluttiin näyttävä, joten Eerikinkadulle päin tehtiin arkkitehti Hugo Ranckenin suunnittelema komea fasadi. Teatteri kehui ilmoituksissaan olevansa Turun suurin, mutta tietojen mukaan paikkoja oli 260, eli 40 vähemmän kuin pahimmalla kilpailijalla, Biograafi Teatterilla nurkan takana Humalistonkadulla.
Kuitenkin Olympia kilpaili yleisöstä myös ohjelmistollaan. Esityksessä oli varhaisina vuosina jo mm. amerikkalaisia lännenkuvia kuten Texas-Tex ja Riffle-Bill. Olympian johtajana toimi alkuvaiheessa Enfrid Isaksson, joka sittemmin oli myöskin Alhambran ja Bio-Bion ruorissa.
Pohjoismainen Biografikomppania omisti Olympian vuoteen 1916. Tällöin se siirtyi Gustav Gustafssonin perustamalle Olympia-yhtiölle. Neljä vuotta myöhemmin, 1920 Olympian uutena omistajana mainitaan tanskalainen Jens Christian Skads, joka kuitenkin jo syksyllä 1921 myi teatterin edelleen Hjalmar ja Berta Nilssonille (myöh. Nil-Kinot Oy) jotka sitten omistivatkin Olympian loppuun asti, kesäkuuhun 1967.
Muutamia vuosia toimittuaan Olympian teatterisali uusittiin perusteellisesti. On kuitenkin hieman epäselvää milloin ja kenen arkkitehdin toimesta: eräs lähde mainitsee teatterin remontin tapahtuneen vuonna 1919 arkkitehti August Krookin suunnitelmien mukaan, toinen lähde taas arkkitehti Erik Bryggmanin suunnittelemana vasta vuonna 1922, heti teatterin siirryttyä Nilssonin omistukseen. Muutospiirustukset on tosin päivätty vuonna 1919, mutta niissä on August Krookin sijasta arkkitehti Alex Nyströmin allekirjoitus. (Sama Krook-Nyström mysteeri kuin vanhan Casinonkin kohdalla)
Oli kuinka oli, Olympia kuitenkin koki suuren remontin, jossa teatterirakennusta sekä levennettiin että korotettiin. Salin korotus salli parvekkeen sekä sivuaitioiden rakentamisen, ja permannon takaosaan tehtiin vielä taka-aitiot. Julkisivu Eerikinkadulle laitettiin myös uusiksi, siitä tuli entistäkin komeampi. Parvekkeen ja levennyksen ansiosta uudistettuun Olympiaan mahtui nyt 500 katsojaa. Tässä asussaan Olympia toimi loppuunsa asti, paitsi myöhempien istuinten vaihdon vuoksi paikkaluku laski 460 tienoille. Myös CinemaScope –laajakangaslaitteet asennettiin teatteriin joskus 1960 –luvun alussa, viimeisenä toimivista turkulaisteattereista. Syynä lienee se, että Nilssonilla oli muitakin teattereita, joihin laittaa Scope –elokuvat esitykseen sekä se että Olympian valkokangas oli hieman hankalasti syvennyksessä eikä leventämisen mahdollisuuksia juuri ollut.
Olympiasta kerrottaessa ei voida sivuuttaa teatterin pitkäaikaista koneenhoitajaa, Kustaa Nikolai Aaltosta. ”Niko” oli tullut elokuva-alalle 1912, ensin Alhambraan, ja sitten 1920 –luvun alussa Olympiaan. Aaltosen koneenhoitajaura kesti peräti 55 vuotta, sillä hän jäi eläkkeelle vasta Olympian lopetettua toimintansa. Nikolain poika Esko Aaltonen seurasi isänsä jalanjälkiä toimien koneenhoitajana myös Olympiassa, sekä myöhemmin Bostonissa.
Esko Aaltosen mukaan purku-uhka leijaili Olympian yllä pitkään, jo 1950 –luvulla, sillä tontin omistava osuusliike Tarmola suunnitteli kauan samalla tontilla sijanneiden puisten myymälärakennustensa korvaamista uusilla tiloilla. Suunnitelmat toteutuivat sitten vuonna 1967, jolloin Olympia sai muiden rakennusten mukana väistyä uuden Centrum –tavaratalon tieltä. Viimeinen esitys Olympiassa oli 4.6.1967, elokuvana enteellisesti ”Surmanlaukaus”.
Olympia ehti toimia melko tarkalleen 60 vuotta elokuvateatterina, eikä sen ikäennätystä ole lyönyt turkulaisteattereista kuin Kinola/Formia, joka ehti toimia hieman yli 72 vuotta.
Tätä kirjoittaessa 2025 entisessä Centrumin tavaratalokiinteistössä toimii Olympian kohdalla ravintola Marilyn, joka sekin on jo alansa yksi turkulaisten ikäennätysten haltija.





















