Casino –teatterin rakennutti Yliopistonkadun, silloisen Venäjän Kirkkokadun varteen varatuomari Gustaf Plathin, ja se avattiin 16.2.1913 elokuvalla ”Isänmaan puolesta”. Lähdekirjallisuus mainitsee teatterin suunnittelijaksi arkkitehti August Krookin, mutta piirustuksissa komeilee kuitenkin arkkitehti Alex Nyströmin nimikirjoitus.
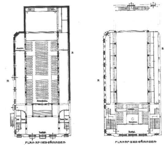
Casino oli sikäli poikkeuksellinen elokuvateatteri, että se suunniteltiin myös elävää teatteria ja operetteja varten. Siksi rakennukseen tehtiinkin näyttämön taakse laajat pukuhuoneet esiintyjille. Erikoista oli myös se että teatterisalin sivustoillakin oli eteistilaa, ja saliin pääsi takaosan ovien lisäksi myös sivuilta. Luonnollisesti näin komeaan teatteriin tehtiin myös parvekekatsomo, joka ulottui myös salin sivustoille. Istumapaikkoja oli aluksi 600, myöhemmin 50 –luvulla 533. Alkuvuosina Casinossa esitettiin eläviä kuvia alkuillasta ja loppuillasta oli operetti- ym. esityksiä. 1920 –luvun alussa Turun Suomalainen teatteri halusi vuokrata Casinon pelkästään teatteriesityksiä varten, mutta hanke ei toteutunut. Sen jälkeen Casino toimi pelkästään elokuvateatterina loppuunsa asti.
Plathinin jälkeen omistajina olivat ainakin August Sorjanen, joka omisti teattereita eri puolilla Suomea. Aikanaan valtakunnallisella kaupalla Sorjasen teatterit siirtyivät Suomen Biografi Oy:lle.
Pisin omistaja Casinolla oli kuitenkin turkulainen Nil-Kinot Oy, joka omisti Casinon vuodesta 1932 aina loppuun, 1957 asti.
Casinoa pidettiin yhtenä Turun loistokkaimmista elokuvateattereista. Teatterin edustakin oli upea: rakennus oli useita metrejä irti kadusta, joten teatterin edessä oli pieni puistikkoterassi. Kadun varressa oli matala kiviaita, jossa Casinon mainostaulut olivat.
Vanha Casino, kuten koko Yliopiston- ja Humalistonkadun kulmarakennukset, ns. pyöreä kulma, purettiin uudisrakentamisen tieltä vuonna 1957. Tilalle rakennettiin yhä nykyäänkin 2025 pystyssä oleva asuin-liiketalo As Oy Kasinonkulma, jonka liiketiloissa elokuvatetterin kohdalla toimii Keilahalli.




















