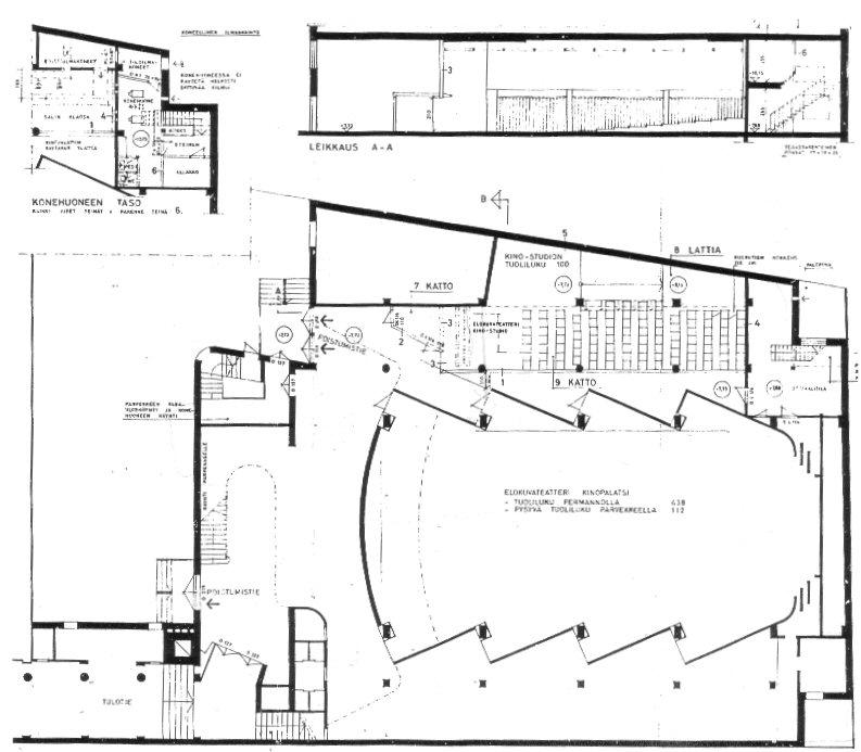
Vuonna 1932 valmistui Eerikinkatu 7:ään As Oy Lintula, rakennus jossa oli asuinhuoneistoja kadun puolella, ja pihan puolella liikuntatiloja. Yläkerrassa oli tennishalli, ja alakertaan oli suunniteltu uimahallia. Uimahallihanke ei kuitenkaan toteutunut loppuun asti, vaikka hallissa oli mm. uima-allas jo valettuna. Tilat olivat tyhjillään nelisen vuotta, kunnes Suomi-Filmi Oy vuokrasi ne elokuvateatterikäyttöön. Muutospiirustukset laati arkkitehti Erik Bryggman, joka onnistuikin loihtimaan tiloihin hienon 589 –paikkaisen parvekkeellisen elokuvateatterin. Kino-Palatsi –nimen saanut teatteri avattiin syyskuun lopulla 1936. Aulatilat olivat poikkeuksellisen väljät ja jopa narikalla varustetut. Katsomon lattia oli lusikkamallinen ja se tehtiin uima-altaan päälle. Altaan pohjaan, lattian alle, puhkaistiin reikä ilmanvaihtoa varten. Yleisön silmälle teatterista tehtiin kaunis: Teatterin hienon esiripun oli suunnitellut rouva Katri Waren-Waris, eteisen valaisimet olivat Taito Oy:n tekemät, jne. Konehuoneeseen hankittiin aluksi laadukkaat Ernemann III –koneet, jotka korvattiin 1940 –luvulla isommilla Ernemann VIIB –koneilla.
Kino-Palatsi toimi lähes alkuperäisessä asussaan vuoteen 1974, jolloin aulassa olevaan narikkatilaan rakennettiin 99 -paikkainen pienteatteri. Kun tämä Kino Coltiksi ristitty pikkusali avattiin elokuussa, oli syntynyt Suomen ensimmäinen kaksoiselokuvateatteri. Aluksi ajateltiin, että Coltilla ja Kino-Palatsilla on vain yhteinen kassa ja vahtimestari, mutta Suomi-Filmi muutti suunnitelmiaan: vaikka Coltin konehuoneeseen ehdittiin tehdä paikat kahdelle koneelle, sinne asennettiinkin kahden projektorin asemesta Suomen ensimmäiset pitkäesityslautaset. Tämä mahdollisti myös yhteisen koneenhoitajan käytön, ja tehtiinpä alaovelle vielä varmuudeksi vahtimestarillekin käynnistyspainike, josta hätätilassa näytöksen pystyi myös aloittamaan.
Coltin sali ei ollut muodoltaan paras mahdollinen elokuvasaliksi, syynä on se että katsomo rakennettiin kuitenkin puoliväkisin vanhojen seinien sallimaan tilaan. Mm. valkokangas jouduttiin jättämään neliskanttisen kokoiseksi, ja laajakangaselokuvien esittäminen oli vaikeaa.
Vuonna 1978 oli edessä vielä isompi remontti: aulan toiseen päähän tehtiin vielä toinenkin pienteatteri, 78 paikan Colt 2, joka avattiin marraskuussa. Sen myötä teatterikompleksista tuli Suomen ensimmäinen kolmoisteatteri. Colt 2:n Sali oli muodoltaan onnistuneempi kuin Colt 1, ja sinne saatiin mahtumaan paremmin myös laajakangas. Samalla myös vanha Kino-Palatsi koki remontin: sali uudistettiin täysin, mm. alkuperäiset istuimet korvattiin mukavilla espanjalaisilla teatterituoleilla, matot ja esirippu uusittiin, ja konehuoneen esitystekniikka vaihdettiin pitkäesityslautaseen. Toinen vanha Ernemann VIIB siirrettiin vanhasta konehuoneesta Colt 2:n lautaskoneeksi ja sen tilalle isoon saliin hankittiin mainoskoneeksi Westrex –niminen uudehko rimpula. Uusien istuinten myötä paikkaluku Kino-Palatsissa putosi 460:een
Koska Suomi-Filmi itse jo 1930 –luvulla tuotti kotimaisia elokuvia, olivat niiden Turun ensi-illat luonnollisesti Kino Palatsissa. Alkuaikoina kotimainen elokuva oli kova sana. Myöhempinä vuosina Suomi-Filmillä oli hieman pulaa ohjelmistosta, eikä Kino-Palatsiin eikä Colteihin tahtonut saada kunnollisia elokuvia. Ainoastaan lastenelokuvia oli paljon, olihan Disneyn edustus Suomi-Filmillä vuosikausia. Lauantaisin ja sunnuntaisin päivällä kaikissa saleissa esitetyt lastennäytökset vetivät paljon yleisöä. Jonkinlainen pornofilmiaikakin Kino-Palatsilla oli, ja toimipa Colt 1 vuoden verran päiväsaikaan nimellä Kino-Kalle esittäen porno-nonstoppia.
Vaikka Kino-Palatsi oli kolmisalisena teatterina tehokas, ja toimi vähäisellä henkilökunnalla, oli silti kannattavuus melko heikko johtuen kunnollisten iltaelokuvien puutteesta. Vuonna 1983, juuri ennen kuin vuokravideot pahiten rynnivät markkinoille, Suomi-Filmi myi kaikki teatterinsa Helsingin LaScalaa lukuun ottamatta Adams-Filmi Oy:lle. Turun Kino-Palatsi ja Coltit saivat uudet nimet: Palatsi 1-2-3, mutta toiminta ei sanottavammin vilkastunut uuden isännän myötäkään. Adamsilla alkoi olla jo liikaa saleja Turussa, ja niinpä Adams sulki Palatsin toukokuussa 1986.
Elokuvateattereiden jälkeen tilat siirtyivät Turun kaupungille, joka saneerasi tiloihin nuorisokeskus Palatsin. Se toimi tiloissa ainakin vielä 2005, kun tein satavuotishistoriaa. Tätä kirjoittaessa 2025 tiloissa toimii kuntokeskus Fitness Palatsi. Ja sisäpihalla näytti olevan vielä entinen konehuoneen parveke paikallaan.
Omat muistelut:
Itselläni ihan ensimmäiset kosketukset elokuvateatterin konehuoneen maailmaan tapahtuivat nimenomaan Turun Kino Palatsissa. Hämärä muistikuva kertoo, että olin äidin kanssa Kino-Palatsin konehuoneessa isän ollessa koneenhoitovuorossa silloin kun vielä Kino-Palatsissa ajettiin elokuvat 600m keloilta.
Paremmat muistikuvat ovat sitten 1980-luvun alkupuolelta, jolloin koko kompleksi toimi jo kolmisalisena. Lipunmyyjistä muistan ainakin Gunnel Talamon ja Hannele Vikaman, joista Gunnel oli mukavampi ”täti”. Koneenhoitajina olivat isäni lisäksi ainakin Hugo Heinonen ja Pertti Arki. Vahtimestareista muistan erityisesti ”värvätyn” Virtasen, joka toimi päivätyössään armeijan värvättynä vääpelinä ja iltatyönä oli tämä vahtimestarin homma. Virtanen oli aika tosikko mies.
Joskus livahdin Kino-Palatsin parvekkeelle, mihin ei myyty yleensä lippuja ollenkaan viime vuosina, ilmaiseksi katsomaan jotain elokuvaa. Opin siirtämään raskaan metallijalkaisen tuhkakupin parvekkeen oven edestä pois ja livahtamaan ovesta parvekkeelle. Eräskin filmi, jonka nimeä en muista, (jälkeenpäin selvinnyt: Mel Brooksin Villiä hurjempi länsi) oli sellainen että miesporukka oli rautatietä rakentamassa, ja illalla tämä porukka söi papusoppaa tms. istuen tukkien päällä, ja yksi kerrallaan miehet nostivat persustaan tukilta ja piereskelivät reilusti kovaan ääneen. Filmi oli pikkupojasta hauska, mutta hauskuus loppui kun Herra Virtanen älysi että olen parvekkeella, ja haki minut sieltä pois. Virtasella tulikin muistaakseni isäni kanssa riitaa siitä, että onko se Virtaselta pois jos istun parvekkeella.
Suomi-Filmin työntekijät saivat 8kpl vapaalippuja kuukaudessa annettaviksi tutuille tms. Liekö Virtasen vai kenen ansiota, että aina kun istuin jossain Kino-Palatsin kolmesta salista elokuvissa, isältäni meni vapaalippu. Kerran olin Palatsi 3:ssa katsomassa Orson Wellesin elokuvaa ”V niin kuin väärennös”. Elokuva oli minusta kamalan tylsä ja pitkävetinen, joten lähdin kesken näytännön pois. Isäni oli tästä erittäin vihainen, kun vapaalippu oli mennyt enkä katsonutkaan elokuvaa loppuun.
Edellä mainitusta Colt 1:n toimimisesta pornoelokuvateatterina rinnakkaisnimellä Kino-Kalle muistan sen, että touhu oli olevinaan salaperäistä. Häveliäisyyssyistä käynti Kino-Kalleen ei tapahtunut edes Kino-Palatsin pääovien kautta, vaan porttikongista mistä yleisö normaalisti poistui. Samoin aulassa oli pornoelokuville oma mainostaulu, jonka eteen vedettiin iltaisin tai ainakin lastennäytösten ajaksi samettiverhot eteen. Itse koetin verhoja joskus raotella, mutta vahtimestari Virtanen –kuinkas muuten- puuttui asiaan ja ”Nunnaluostarin karvaisen pukin” mainoskuvat jäivät näkemättä.
Hieman vanhempana opettelin Kino-Palatsissa pujottelemaan filmiä Ernemann VIIB –koneisiin. Palatsi 1:ssä toimi jonkun aikaa elokuvakerho Prisma, jonka yksi esitys viikossa esitettiin 600m keloilta vuorotellen Westrexin ja Ernemannin kesken. Kerran eräässä kerhoesityksessä Westrexin alakela lakkasi jostain syystä vetämästä kesken näytöksen, ja loppu kela ajettiin vain lattialle -isä sanoi että antaa mennä, ei viitsi esitystä katkaista. Kelan vaihtoja eli yliheittoja tein kerhoesitysten aikana isän tietysti valvoessa. Aika nappiin ne vaihdot menivät.
Erään tapauksen muistan, kun samaan aikaan ykkössali loppui ja kolmossalin piti alkaa. Isä meni lopettamaan ykkösen ja antoi minun vastuulleni kolmosen aloittamisen. Filmi oli jo pujotettu valmiiksi lautasilta koneelle, minun piti vain himmentää salin valot ja startata kone ja avata valoluukku. No tietysti juuri silloin, kun sain koneen käyntiin, tuli joku huono liitos ja filmi paukahti poikki ennen kuin edes sain kuvan kankaalle. Stoppasin koneen ja automatiikka antoi aulaan summerilla hälytysäänen. En tajunnut ottaa hälytystä pois, ennen kuin Virtanen soitti sisäpuhelimella konehuoneeseen, että summeri huutaa. En saanut esitystä käyntiin ennen kuin isä tuli ykkösen konehuoneesta selvittämään tilanteen. Nolotti silloin. Olisin halunnut olla koneenhoitaja.
Kino-Palatsin henkilökunnan taukotilassa oli jääkaappi, ilmeisesti Ritzin makeiskioskista lähtöisin, missä oli Trip-mehuja. Henkilökunta sai ostaa näitä juomia alehintaan. Erään kerran isän ja minun mukana Kino-Palatsissa oli myös ystäväni Joni Kuusela. Joni olisi ostanut mehuja vaikka kuinka paljon sieltä jääkaapista, mutta isäni tiuskaisi lopulta: ”Poika ei mittää muuta ku jois vaa juatavii, ei onnistu et ostetaa koko kaappi tyhjäks.” Ja tämä vaan sen henkilökuntahinnan takia (ettei muilta henkilökuntalaisilta tulisi sanomista). Samalla reissulla meidän piti katsoa Jonin kanssa Tom Cruisen teinielokuva ”Riskibisnes” Palatsi 2:ssa, mutta elokuva oli K-14 ja me olimme vasta 13vee… eikä isäni tarkkana miehenä päästänyt meitä elokuvaa katsomaan. Pettymys oli melkoinen! (ja isä kehui myöhemmin, että oli itse ollut 13-vuotiaana Paimion vanhassa Kinossa katsomassa K-16 elokuvaa ”Kosto Burmassa”!)
Kino-Palatsi oli sikäli huono kolmoisteatteri, että kaikki konehuoneet olivat erikseen. Ykkössalin konehuone oli tietysti se 1936 tehty betonibunkkeri, jonne käynti tapahtui talossa olevan porraskäytävän ja ulkoparvekkeen kautta. Kakkosen konehuone oli tehty henkilökunnan taukotilan päälle, ja kolmosen konehuoneeseen mentiin ykkösen valkokankaan takaa tehtyä kävelysiltaa pitkin. Siinä piti hiippailla aina hiljaa, etteivät kävelyn äänet olisi häirinneet ykkösen esitystä. Sen lisäksi että konehuoneet olivat hankalasti erillään, yleisölle näkyvämpi seikka oli, etteivät pikkusalit suoraan sanoen olleet mukavia. Varsinkin Colt1/Palatsi2 oli hyvin kapea, eikä sinne mahtunut kunnollisen levyistä laajakangastakaan. Kaikki Scope-elokuvat esitettiin siten, ettei kuvaa levitetty niin paljon kuin olisi pitänyt: anamorfilinssinä oli UltraPanator, jonka levityssuhdetta pystyi säätämään.
Edellä mainittu henkilökunnan taukohuone oli lähinnä kuitenkin ryönävarastona. Jonkinlaiset pukukaapitkin siellä oli henkilökunnalle, mutta nekin olivat täynnä tavaraa ja vanhoja pornoelokuvien julisteita. Kino-Palatsin nurkat tuli nuohottua mukulana siis melkoisen tarkkaan. Taukohuoneessa ja ykkösen valkokankaan alapuolella oli paljon Ritzistä purettua tavaraa, mm. mainostauluja ja valaisimia. Kino-Palatsin kellarissa olivat myös Ritzin vanhat istuimet varastoituna. Ja jossain ryönien keskeltä muistelisin Kino-Palatsin alkuperäisen, sen Waren-Wariksen suunnitteleman esiripun olleen mytyssä…






































